
COMPLETED
İSTANBUL
INTERIOR DESIGN
ISTANBUL METROPOLITAN MUNICIPALITY DIRECTORATE OF CULTURAL HERITAGE
3000 M²
2023
EGEMEN KARAKAYA
Located on the shores of the Golden Horn, Tersane-i Amire was the main base and naval shipyard of the Ottoman Empire. It consists of three different settlements named "Haliç", "Camialtı", and "Taşkızak". Of these settlements, the “Haliç” Shipyard is the only part that continues to be used as a shipyard until today. The shipyard, which developed during the reign of Yavuz Sultan Selim in the 16th century, was modernized in the 1800s. Traces of that period are still evident in the architectural details of the buildings and in the pools where the ships were maintained.
As part of the adaptive reuse projects prepared by Erginoğlu & Çalışlar in 2018, the renovation of five blocks located in the Golden Horn Shipyard was initiated. The restoration processes for the hangars, which began during this period, were completed in 2023. Following the completion of the buildings, the Istanbul Metropolitan Municipality (IMM) refocused on the Golden Horn Shipyard in 2023 and planned to open the Istanbul Museum of Art as part of this initiative.























While part of the Golden Horn Shipyard was used as a shipyard, the interiors of the restored buildings were designed for culture and arts programs. Four blocks of the first phase, consisting of five blocks, were designed as the Istanbul Art Museum and Workshops. The two main stone buildings, Blocks C and D, were organized as the main exhibition spaces of the museum. The interior of Block A, located in front of these buildings, was designed as the museum's store and information desk. Block E, located next to the maintenance pool, was organized as art workshops and a café for children. In this way, the programs serving the exhibition space were spread throughout the area. Block B at the entrance is programmed as the Performance and Cultural Center and the project process is ongoing.
Blocks C and D, planned as the museum, were realized under the name Istanbul Art (Golden Horn Shipyard). The exhibition layout in Block C, which has a high and single space, was planned to reveal the architecture of this space. A wall standing on its own and welcoming visitors at the entrance plays the dual role of displaying the content of the exhibition and concealing the space behind it. The exhibition walls surrounding the structure are placed in front of the steel structure that supports the roof. These walls, placed disjointedly from the floor and ceiling, serve as a background to the existing historic stone walls of the structure.
Block C, located at the center of the settlement, distinguishes itself from the surrounding buildings with its historic stone walls. This two-story structure was lifted with a black steel structure in the previous renovation process. Exhibition walls added to this space are positioned in front of the existing walls. Different exhibition spaces were designed within the 77-meter-long hangar. These spaces, consisting of rooms, halls, and corridors, were placed in a way that does not lose the perspective and depth of the hangar.
Block A, located at the entrance of the museum, houses both the information desk and the museum shop programs. In the entrance-exit corridor axis of the structure, there is a wooden unit designed for the information and sales unit. In the rear corridor, there are white display furniture for different types of product displays.
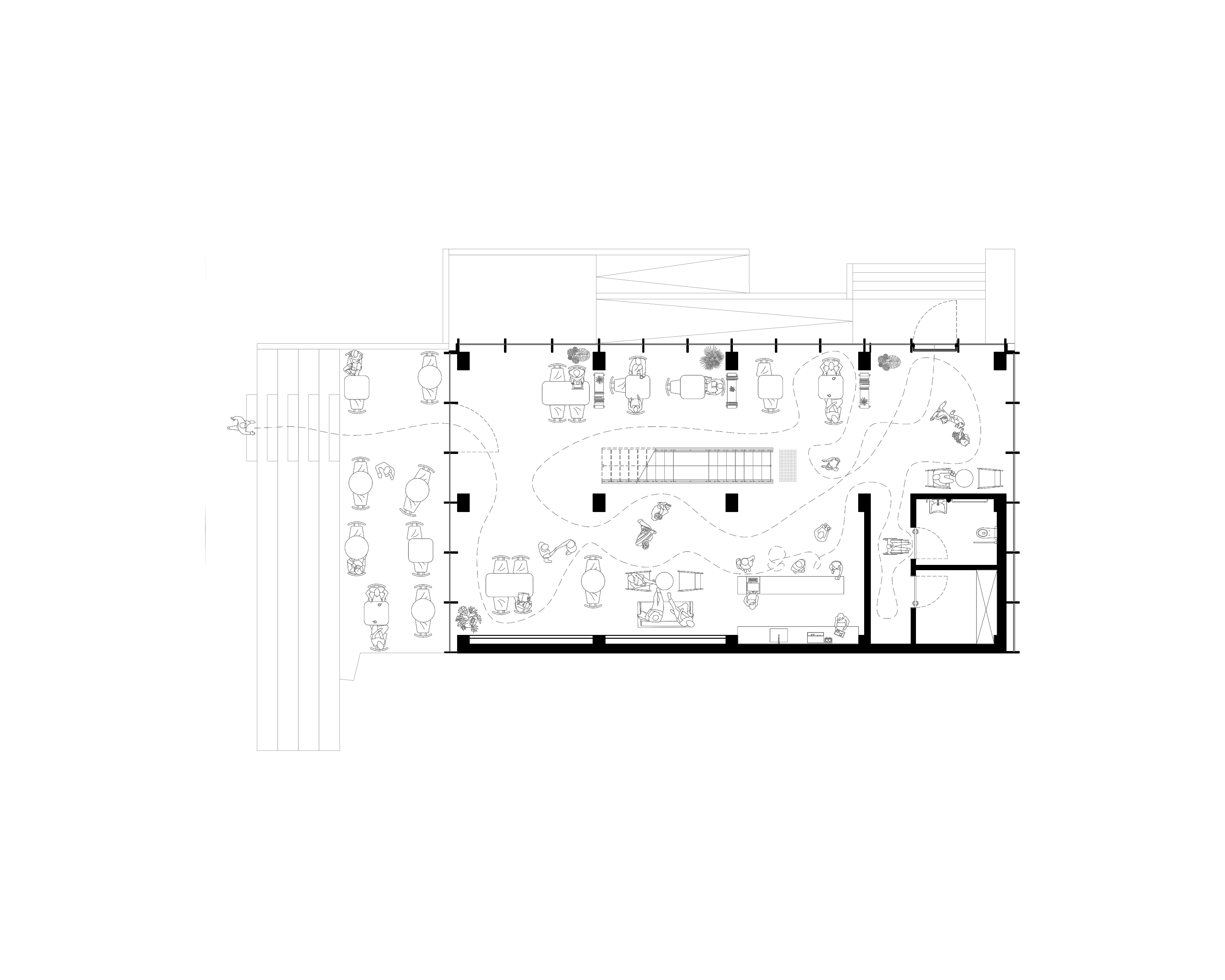
The spaces for the art workshops of the museum were planned in Block E. This allows the workshops to remain open even when the museum is closed. The spaces planned for children's activities are located on the first floor. Different furniture was designed and placed in the space for a small stage/activity area, group work, and individual workshops. The ground floor was planned as a waiting and leisure area for families with its terrace and café.



