
ONGOING
İSTANBUL
COMMERCIAL
ISTANBUL METROPOLITAN MUNICIPALITY DIRECTORATE OF CULTURAL HERITAGE
2000 M²
2023
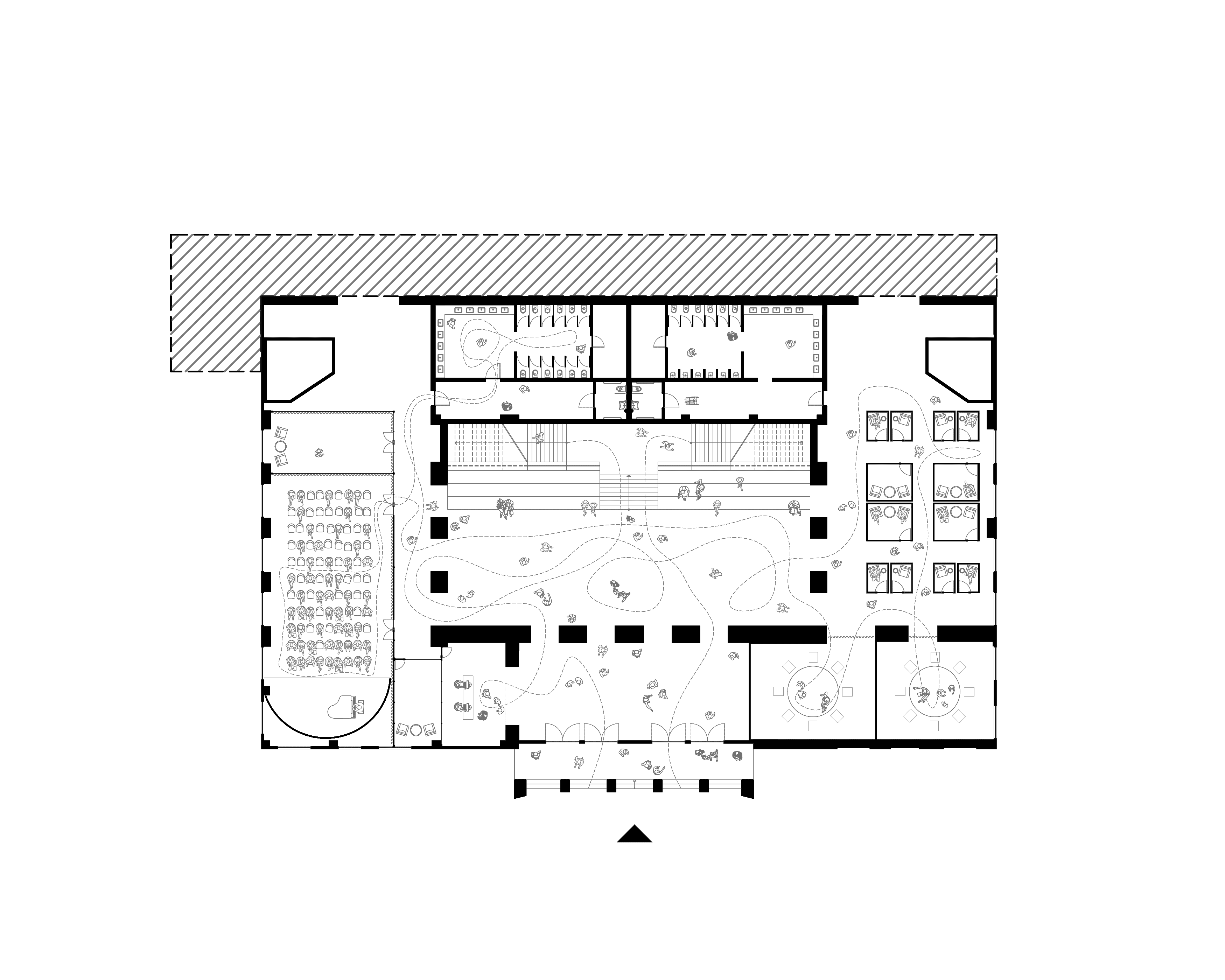
As part of the renovation project led by the Istanbul Metropolitan Municipality (IBB), the entire foyer of the Cemal Reşit Rey Concert Hall was redesigned for public use. The project includes a café, music library, contemporary recording technology experience areas, and a multi-purpose hall. NOVOS developed the architectural concept and interior design implementation projects.









